| 価格 | 3,499万円 ![]() |
||||||
|---|---|---|---|---|---|---|---|
| 所在地 | 愛知県名古屋市中川区八熊1-6-16
この地域周辺の物件を見る |
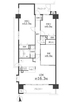
専有面積 | 86.1u | 間取り | 3LDK (LDK16.3/洋室12.5/洋室6/和室6) | ||
| 交通 |
名鉄名古屋本線 金山 徒歩10分
JR中央本線 金山 徒歩10分 名古屋市営名城線 金山 徒歩10分 |
管理費等 | 5,980円/月 | 修繕積立金 | 19,967円/月 | 所在階/階数 | 3階/地上9階建 | 築年月 | 2002年6月築 | バルコニー面積 | 15.65m² |
| アルコープ使用料 | 月額150円 | ||||||
電話をかける(携帯・PHS可)
0120-221-506
「ホームページを見た」とお伝え下さい。
お問い合わせ番号をお伝えください
RHS-7124303
| 特徴 |
|
|---|---|
| セールスコメント | ターミナル駅「金山」駅まで10分と交通至便です。 |
| 採光面 | 南 | 取引態様 | 仲介 |
|---|---|---|---|
| 現況 | 空家 | 引渡し | 相談 |
| 総戸数 | - | 構造 | RC造 |
| テラス面積 | - | 専用庭面積 | - |
| 駐車場 | 有:9,000円/月 | 駐輪場 | 有 |
| 建物権利 | - | 土地権利 | 所有権 |
| 用途地域 | 近隣商業地域 - - |
管理態様 | 管理形態:委託(巡回) 管理組合:- 管理会社:宝コミュニティサービス株式会社 |
| 備考 | ※2027年11月分より修繕積立金が24160円に改定予定。 |
||
| 情報更新日 | 2026年01月06日 | 次回更新日 | 2026年01月20日 |
| 小学校区 | 八熊小学校 (愛知県名古屋市中川区) この学区の他の物件を見る |
中学校区 | 山王中学校 (愛知県名古屋市中川区) この学区の他の物件を見る |
|---|
電話をかける(携帯・PHS可)
0120-221-506
「ホームページを見た」とお伝え下さい。
お問い合わせ番号をお伝えください
RHS-7124303
| 価格 | 万円 | ||
|---|---|---|---|
| 年利率 | % |
||
| ボーナス払い | 返済年数 | ||
| 頭金 | 直接入力する | 万円 | |

毎月のご返済額 |
ボーナス(×年2回) |
物件価格3,499万円 |
電話でお問い合わせ
住みかえSHOP
|
電話をかける 0120-221-506 ※「ホームページを見た」とお伝えください。 |
お問い合わせ番号をお伝えください RHS-7124303 |
|---|
2025年10月リフォーム済です。
角部屋につき通風・採光良好です。
大切なペットと暮らせるマンションです。(要承認)