| 価格 | 7,990万円 ![]() |
||||
|---|---|---|---|---|---|
| 所在地 | 愛知県名古屋市昭和区南分町三丁目1番
この地域周辺の物件を見る |
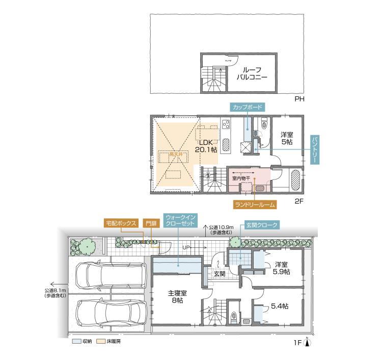
土地面積 | 123.23m² (37.28坪) | 建物面積 | 119.84u |
| 築年月 | 2026年3月築 | 間取り | 3LDK (LDK20.1/洋室8/洋室5.9/洋室5/その他5.4) | ||
| 交通 |
名古屋市営桜通線 御器所 徒歩9分
名古屋市営鶴舞線 川名 徒歩10分 バス **** 名古屋市バス「塩付通四丁目」停/徒歩4分 |
||||
電話をかける(携帯・PHS可)
0120-221-506
「ホームページを見た」とお伝え下さい。
お問い合わせ番号をお伝えください
RHS--01
| 特徴 |
|
|---|---|
| セールスコメント | - |
| 採光面 | 西 | 構造/階数 | 木造/地上2階建 |
|---|---|---|---|
| 建ぺい率 | 70(%) | 容積率 | 200(%) |
| 駐車場 | 有 | 現況/引渡し | 建築中/2026年3月 |
| 土地権利 | 所有権 | 私道負担面積 | なし |
| 接道状況 | 接道: 西 公道 道路幅: 8.1m 接道: 北 公道 道路幅: 10.9m |
用途地域 |
第二種中高層住居専用地域
-
-
|
| セットバック | なし | 法令上の制限 | - |
| 地目 | 宅地 | 地勢 | |
| 建築確認番号 | 第R07確認建築愛建住セ23058号 | 都市計画 | 市街化区域 |
| 取引態様 | 専任媒介 | ||
| 備考 | - | ||
| 情報更新日 | 2025年11月24日 | 次回更新日 | 2025年12月08日 |
| 小学校区 | 松栄小学校 (愛知県名古屋市昭和区) この学区の他の物件を見る |
中学校区 | 桜山中学校 (愛知県名古屋市昭和区) この学区の他の物件を見る |
|---|
電話をかける(携帯・PHS可)
0120-221-506
「ホームページを見た」とお伝え下さい。
お問い合わせ番号をお伝えください
RHS--01
| 価格 | 万円 | ||
|---|---|---|---|
| 年利率 | % |
||
| ボーナス払い | 返済年数 | ||
| 頭金 | 直接入力する | 万円 | |

毎月のご返済額 |
ボーナス(×年2回) |
物件価格7,990万円 |
電話をかける(携帯・PHS可)
0120-221-506
「ホームページを見た」とお伝え下さい。
お問い合わせ番号をお伝えください
RHS--01
【12月25日までの期間限定】建物がカスタムできます!
【期間限定の建物カスタムについて】
下記項目についてグレードアップやカラー変更、追加オプションが可能です。※一部有償のものもございます。
(1)キッチン・・・グレードアップ(タッチレス水栓やIH)やカラー変更
(2)洗面・・・グレードアップ(収納がしやすくなり照明もスマートに)
(3)トイレ・・・タンクレスに変更やトイレ内手洗い追加
(4)クロス・・・子供部屋や主寝室にお好みのクロスでアクセント
(5)可動棚・・・収納をもっと増やしたい
(6)室内物干し・・・洗面脱衣や居室に追加可能
(7)幹太くん・・・毎日の家事のお供に
(8)コンセント・・・各居室に有線LANの増設も可
詳しくは担当:井上までお気軽にご連絡ください。