| 価格 | 2,899万円 ![]() |
||||
|---|---|---|---|---|---|
| 所在地 | 愛知県一宮市和光2-8-88
この地域周辺の物件を見る |
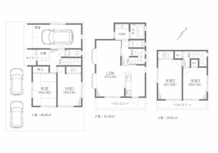
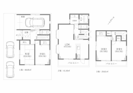
土地面積 | 132.69m² (40.14坪) | 建物面積 | 120.06u |
| 築年月 | 1999年12月築 | 間取り | 4LDK (LDK16.8/洋室7.6/洋室6.1/洋室6.1/和室6) | ||
| 交通 |
JR東海道本線 尾張一宮 徒歩24分/バス10分 平島公園野球場 停歩5分
名鉄名古屋本線 名鉄一宮 徒歩24分/バス10分 平島公園野球場 停歩5分 |
||||
電話をかける(携帯・PHS可)
0120-221-506
「ホームページを見た」とお伝え下さい。
お問い合わせ番号をお伝えください
RHS-7017888
| 特徴 |
|
|---|---|
| セールスコメント | オール電化は空気も汚れず、IHキッチンでお掃除もラクラクです。 |
| 採光面 | 東南 | 構造/階数 | 木造/地上3階建 |
|---|---|---|---|
| 建ぺい率 | 60(%) | 容積率 | 200(%) |
| 駐車場 | 有 | 現況/引渡し | 空家/即時 |
| 土地権利 | 所有権 | 私道負担面積 | - |
| 接道状況 | 接道: 南西 私道 道路幅: 4m | 用途地域 |
工業地域
-
-
|
| セットバック | - | 法令上の制限 | - |
| 地目 | 宅地 | 地勢 | 平坦 |
| 建築確認番号 | 都市計画 | 市街化区域 | |
| 取引態様 | 仲介 | ||
| 備考 | - | ||
| 情報更新日 | 2025年12月05日 | 次回更新日 | 2025年12月19日 |
| 小学校区 | 富士小学校 (愛知県一宮市) この学区の他の物件を見る |
中学校区 | 北部中学校 (愛知県一宮市) この学区の他の物件を見る |
|---|
電話をかける(携帯・PHS可)
0120-221-506
「ホームページを見た」とお伝え下さい。
お問い合わせ番号をお伝えください
RHS-7017888
| 価格 | 万円 | ||
|---|---|---|---|
| 年利率 | % |
||
| ボーナス払い | 返済年数 | ||
| 頭金 | 直接入力する | 万円 | |

毎月のご返済額 |
ボーナス(×年2回) |
物件価格2,899万円 |
電話をかける(携帯・PHS可)
0120-221-506
「ホームページを見た」とお伝え下さい。
お問い合わせ番号をお伝えください
RHS-7017888
2025年9月リフォーム済です。
全居室6帖以上を確保、雨風から大切な愛車を守るガレージ付の4LDKです。